Ihr neues Zuhause: Stilvolle Neubau-Doppelhaushälfte in Prisdorf

Lage: 25497 Prisdorf | Schleswig-Holstein
Hausansicht von der Seite
Hausansicht vorne
Hausansicht hinten

Beschreibung

Willkommen in Prisdorf – Ihrem zukünftigen Zuhause

In der idyllischen Gemeinde Prisdorf entsteht eine moderne und hochwertige Doppelhaushälfte, die besonderen Wert auf Nachhaltigkeit legt. Dieses projektiere Bauvorhaben bietet den Anspruchsvollen unter Ihnen ein Zuhause, das sowohl Komfort als auch Effizienz vereint. Das Haus, das voraussichtlich 2026 fertiggestellt wird, besticht durch eine durchdachte Raumaufteilung auf zwei Etagen und eine gute Anbindung an alle Annehmlichkeiten des Lebens.

Mit einer Wohnfläche von 122 m² auf einem Grundstück von 143 m² bietet dieses Objekt genügend Platz für Ihre Familie. Das Haus umfasst vier großzügige Zimmer, darunter drei Schlafzimmer, die Komfort und Rückzugsort bieten. Zwei moderne Badezimmer ergänzen das Raumangebot und sorgen für zusätzlichen Komfort.

Die lichtdurchflutete Doppelhaushälfte verfügt über eine einladende Terrasse, ideal für gemütliche Stunden im Freien. Eine gepflasterte Auffahrt führt zu Ihrem neuen Zuhause, und auf Wunsch kann ein Carport gegen Aufpreis hinzugefügt werden, um Ihre Fahrzeuge zu schützen.

Ein besonderes Highlight ist das integrierte Solarsystem, das nicht nur Ihre Energiekosten senkt, sondern auch einen Beitrag zum Umweltschutz leistet. Für kulinarischen Genuss sorgt eine Küche, die optional gegen Aufpreis hinzugefügt werden kann, ganz nach Ihren individuellen Vorstellungen und Bedürfnissen. Dieses Projekt wird gemäß dem Gebäudeenergiegesetz (GEG) realisiert, was Ihnen einen nachhaltigen und zukunftssicheren Wohnkomfort garantiert.

Profitieren Sie von der WEG-Teilung, die Ihnen klare Strukturen und eine einfache Verwaltung bietet. Lassen Sie sich diese einmalige Gelegenheit nicht entgehen und gestalten Sie Ihr neues Zuhause in Prisdorf ganz nach Ihren Wünschen!

Kontaktieren Sie uns noch heute für weitere Informationen und sichern Sie sich einen Platz in dieser aufstrebenden Wohngegend.

Ausstattungs­beschreibung

- Terrasse
- Zwei Stellplätze
- Carport (optional gegen Aufpreis)
- Küche (optional gegen Aufpreis)
- Wärmepumpe
- Dreifachverglasung
- Solaranlage
- Gemeinschaftsauffahrt
- Hochwertige Sanitärausstattung
- Ruhige Lage

(Die ausführliche Baubeschreibung senden wir Ihnen gerne auf Wunsch zu)

Sonstige Angaben

Haben Sie weitere Fragen zu dieser Immobilie oder suchen noch Ihre Traumimmobilie?
Oder haben Sie ganz allgemeine Fragen zum Thema Immobilien?

Sprechen Sie uns gern unverbindlich an, damit wir Sie beraten können.

Ihr Ansprechpartner:
RE/MAX Ihr persönlicher Makler
Sascha Bock
Kuhberg 9
24534 Neumünster
Telefon: 04321/20691-12
EMail: sascha.bock@remax.de
Ich freue mich über Ihren Anruf!

Haben Sie Interesse an einem Exposé für dieses Objekt?

Füllen Sie bitte hierfür einfach das Kontaktformular mit Anschrift, Telefonnummer und E-Mail Adresse vollständig aus, damit wir Ihnen das vollständige Exposé zukommen lassen können.

Durch unser Netzwerk bekommen Sie alles aus einer Hand.

Bitte beachten Sie, dass die Maklerprovision selbstverständlich nur dann anfällt, wenn Sie die Immobilie auch tatsächlich kaufen.

Alle Einheiten und Dateien richten sich nach den Angaben des Auftraggebers. Unsere Angebote sind freibleibend und unverbindlich. Die Courtage beträgt 3,57 % inkl. gesetzl. MwSt.
In Ausnahmefällen kann, aufgrund erhöhter Nachfrage, der tatsächliche Kaufpreis den Angebotspreis übersteigen. Es kann zu unserem digitalem Angebotsverfahren DAVEit kommen.
Es wird darauf hingewiesen, dass es sich bei der Wohnflächenangabe um die Wohn-Nutzfläche handelt.

Lage und Verkehrsanbindung

Diese charmante Doppelhaushälfte befindet sich in einer begehrten Wohngegend von Prisdorf, einer lebendigen Gemeinde im nördlichen Teil Deutschlands. Eingebettet in eine ruhige, familienfreundliche Umgebung, bietet diese Lage eine perfekte Kombination aus naturnahem Wohnen und städtischer Infrastruktur.

Prisdorf zeichnet sich durch seine hervorragende Anbindung an die Metropolregion Hamburg aus, was es zu einem idealen Wohnort für Pendler macht. Der Ort selbst bietet eine Vielzahl an Einkaufsmöglichkeiten, gastronomischen Betrieben und Freizeitaktivitäten, die den Alltag bereichern.

Zahlreiche Grünflächen und Parks in der Umgebung laden zu erholsamen Spaziergängen und Outdoor-Aktivitäten ein. Familien profitieren von der Nähe zu Kindergärten und Schulen, die alle leicht erreichbar sind. Für Sportbegeisterte bietet die Umgebung diverse Sportvereine und Einrichtungen.

Insgesamt bietet diese Immobilie den perfekten Rückzugsort für alle, die ein harmonisches Wohnumfeld mit allen Annehmlichkeiten des täglichen Bedarfs suchen.

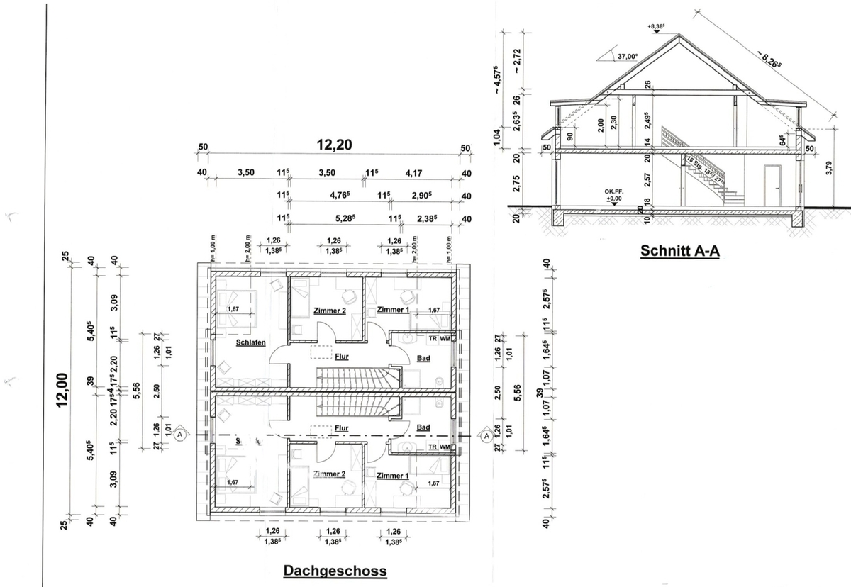
Grundrisse

Fakten

Objektnummer:
1126-AW26002
Objekttyp:
Haus
Terrasse:
1
Wohnfläche:
122 m²
Grundstücksfläche:
165 m²
Zimmer:
4
Schlafzimmer:
3
Bad:
2
Baujahr:
2026
Zustand:
Erstbezug
Verfügbarkeit:
Verfügbar

Preisdetails

Kaufpreis:
486.000,00 €
Provision:
Käuferprovision: 3,57 % inkl. 19 % MwSt. vom notariell beurkundeten Kaufpreis

Energieeffizienz

Endenergiebedarf:
13.90 kWh/(m²*a)
Energieeffizienzklasse:
A+
Wesentliche Energieträger:
Luftwp
Baujahr laut Energieausweis:
2025
Ausstellung:
ab dem 1.5.2014
Energieausweisart:
Energiebedarfsausweis
Gültig bis:
03.02.2036

Ansprechpartner

Angela  Wuttke
Anfrage
Max. 500 Zeichen
Ich habe die Datenschutzvereinbarung gelesen und verstanden, und ich stimme der Verarbeitung meiner persönlichen Daten wie darin beschrieben zu. *